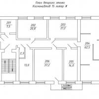
Продам помещение в Екатеринбурге на пр.Космонавтов дом 15 на территории Стройтехмеханизации
Продам помещение, расположенное по адресу: город Екатеринбург, проспект Космонавтов, дом 15, литера "Ж", территория Стройтехмеханизации (круглосуточно охраняемая). Пересечение с улицей Артинская, в нескольких минутах от центра города, в шаговой доступности от станции метро. Отличная доступность общественного транспорта, подъездные возможности для грузового транспорта. Ближайшее окружение - офисные здания, тоговые компании, складские помещения, базы и прочее.
Помещение занимает 2-ой этаж 4-х этажного здания. Общая площадь 250 м. кв., полезная - 178 м. кв., с/у на этаже, 7 кабинетов, площади которых от 7,5 метров до 62 метров. Все коммуникации, место для парковки автомобилей. Помещение офисного/торгово-офисного назначения.
Стоимость объекта 12 500 000 рублей. Возможна сдача в аренду, стоимость аренды 125 000 рублей в месяц.
Агентство недвижимости СОТКИН.РУ
ул. Заводская, д. 27, офис 315
8(912)299-98-76
Портал о недвижимости www.sotkin66.ru предлагает бесплатно разместить информацию о продаже земельных и садовых участков, дач, домов, коттеджей, недостроенных объектов, а также объектов коммерческого назначения.
Тэги: недвижимость, новости екатеринбурга, соткин, продажа земельных участков Екатеринбург, продажа земельных участков, продажа земельных участков свердловская область, агенство недвижимости, Портал бесплатных объявлений, портал бесплатных объявлений о продаже загородной недвижимости, Срочная продажа квартиры, купить квартиру срочно, Портал о недвижимости, Продам помещение в Екатеринбурге
18.07.2013 17:42






